Informacije o nekretnini
Kategorija
Tip:
Na prodaju
Cijena:
€ 590 000
Lokacija:
Labin, Istra
Površina:
152.88 m2
Okućnica:
622 m2
Spavaćih soba:
3
Kupaonica:
3
Soba:
5
Oddaljenost od morja:
1 km
Oddaljenost od plaže:
1 km
Datum dokončanja:
12 / 2026
Upit
Sva polja su obavezna *
Vaše ime *
E-mail adresa *
Mobilni broj *
Poruka *
Anti-spam šifra *
Molim prepišite peteroznamenkasti kod od iznad
Opis
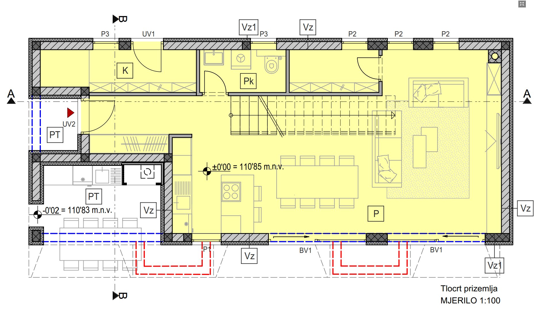
Vila nudi moderan otvoreni koncept životnog prostora koji se besprijekorno spaja s vanjskim bazenom i vrtom. Promišljen raspored na jednoj etaži osigurava udoban život, dok vrhunski građevinski materijali jamče trajnost i energetsku učinkovitost (A+).
Najvažnije značajke nekretnine:
1. Prostrana parcela s nevjerojatnim bazenom
- Parcela od 714 m² nudi velikodušan vanjski životni prostor
- privatni bazen od 38 m² (3,5 m x 9 m)
- biljke i navodnjavanje uključeni
Životni prostor
2. Udoban raspored u prizemlju
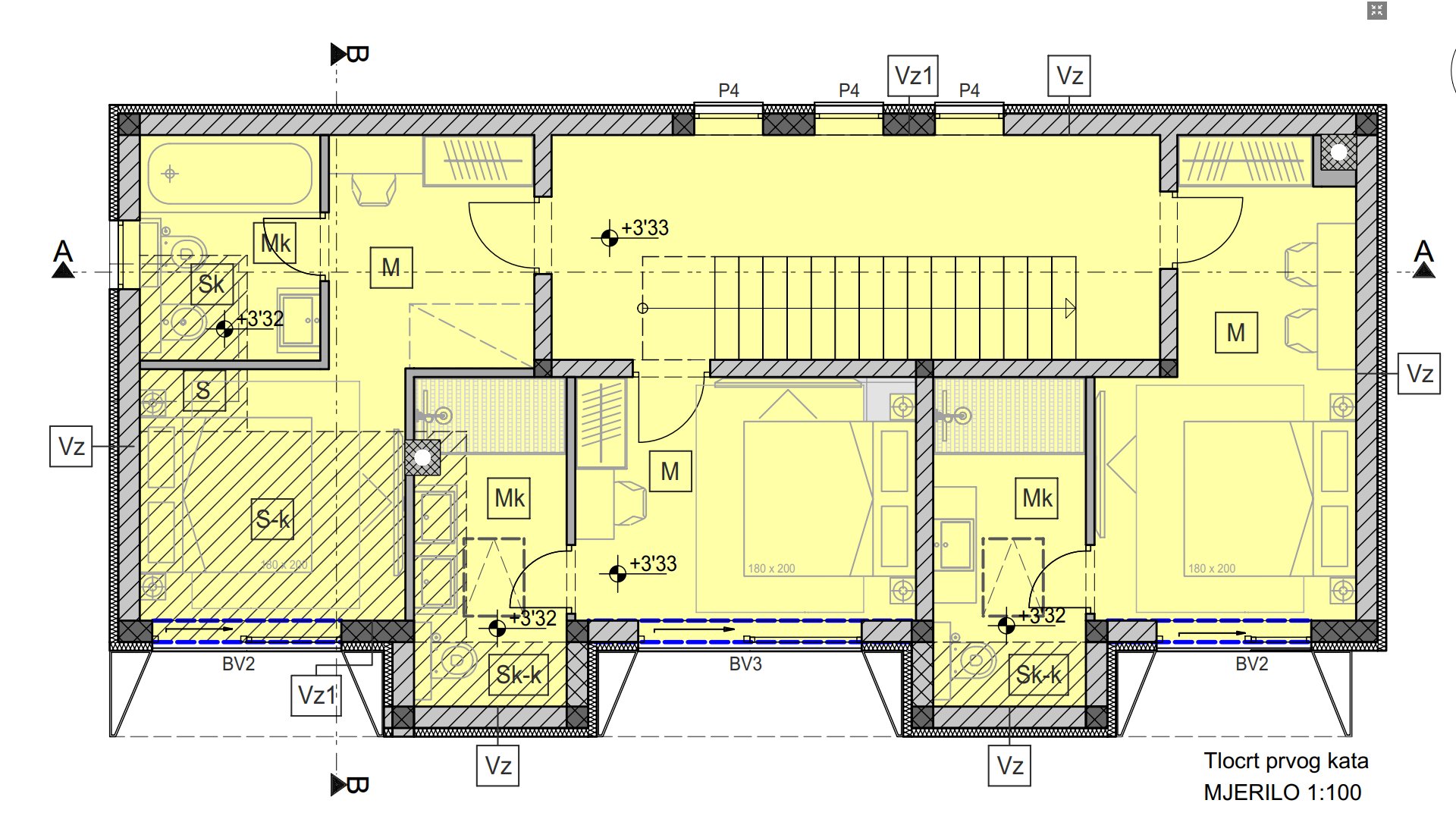
- 131,43 m² uključujući 3 spavaće sobe s vlastitom kupaonicom i dodatnu sobu
- nudi vrhunsku visinu od 3 m od poda do stropa (standardna visina u Hrvatskoj 2,5 m - 2,6 m)
3. Lokacija
- Izvrstan položaj u Istri, kratka vožnja (10 min) do Labina s mnogim kafićima, trgovinama i restoranima, samo 1,2 km od mora
- Zračna luka Pula 35 min vožnje
- jednostavan pristup poznatoj istarskoj gastronomiji, vinogradima i maslinicima.
Detalji
Klima uređaj
Bazen
Terasa
Spremište
Vrt
U izgradnji
Dva parkirna mjesta
Okolica
Djelomični pogled na more






