Allmän information
Kategori
Typ:
Säljes
Pris:
€ 2 750 000
Läge:
Vodnjan, Istrien
Yta:
406 kvadratmeter
Omkrets:
1363 kvadratmeter
Sovrum:
4
Badrum:
4
Rum:
6
Avstånd till havet:
5 km
Avstån från stranden:
5 km
Byggnadsår:
2023
Slutdatum:
2024
Begäran
Alla fält är obligatoriska *
				Ditt Namn * 
E-post * 
Mobilnummer * 
Meddelande * 
Klicka på rutan * 
Beskrivning
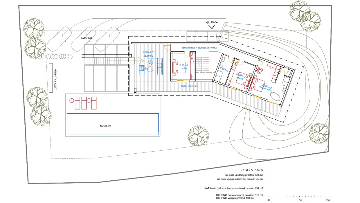
Luxury villa with gross surface area of 406 sqm on a plot of land of 1,363 sqm.
The villa will have a spacious living room, 4 bedrooms, 4 bathrooms with toilet, sauna, guest toilet, additional shower in the sauna room, laundry room.
On the ground floor there will be a living room with a kitchen, which opens onto a spacious covered terrace with lounges, a garden, a bedroom, a bathroom, a sauna, a guest toilet and a laundry room.
On the first floor there are 3 bedrooms, bathrooms and a large covered terrace with a lounge. From the master bedroom there is access to the garden.
In the garden of the villa there will be a swimming pool with a sunbathing area. Two parking spaces are provided in the back part of the plot. The level of equipment of the villa will be at a high level.
The terrace offers a panoramic view of Brioni National Park, the sea, vineyards and olive groves.
Detaljer
Klimatet
Simbassäng
Superlyxigt
Två terrasser
Utsikt över havet
Förråd
Trädgård
Bastu
Två parkeringsplatser
			



